切换到宽版
  • 5阅读
  • 1回复

[奇观]福州翌索未来幼儿园 / 迪卡建筑设计中心[45P] [复制链接]

上一主题 下一主题
在线jjybzxw

UID: 551814

 

发帖
212193
金币
613450
道行
2006
原创
2441
奖券
3260
斑龄
41
道券
1197
获奖
0
座驾
设备
摄影级
在线时间: 46437(小时)
注册时间: 2008-10-01
最后登录: 2025-12-19
只看楼主 倒序阅读 使用道具 楼主  发表于: 3小时前


©迪卡建筑设计中心
当多数城市幼儿园仍桎梏于方盒子的功能化空间框架时,迪卡建筑设计中心为福州这座城市构建了一座悬浮于城市肌理之上的未来堡垒。这座通体莹白、兼具未来主义锋芒与超现实诗意的建筑拔地而起,以打破常规的形态语言,将建筑从单纯的功能容器,升维为承载孩童想象力的教育载体。
不仅实现了对幼儿空间功能属性的重构,更完成了叙事内核的突破 —— 让空间成为讲述成长与探索的立体文本。建筑自诞生之初,便以独树一帜的姿态,成为城市教育领域备受瞩目的焦点。

©Gaoxin
项目概述


©Gaoxin
福州翌索未来幼儿园项目选址于福州市仓山区建新镇上下店路 12 号,项目占地 4408㎡,建筑面积达 9646㎡,由福建晟禾教育管理集团有限公司投资兴建。
迪卡建筑设计中心为该项目量身打造的空间载体,深度融合教育传承的厚重底蕴与场域创新的先锋能量。设计锚定赋能未来成长,守护童真天性的核心命题,将科技感的前沿表达与自然意趣的本真质感精妙交织,旨在构建出一处既精准契合幼儿身心发展规律,又能唤醒其内在无限潜能的成长场域。

©Gaoxin
在空间叙事的构建上,设计团队并未止步于功能叠加,而是聚焦核心命题:将 “翌索” 之名所蕴含的展望未来、探索未知的意涵,转化为可触摸、可感知的建筑语言。
为此,团队刻意摒弃传统幼儿园中具象化的卡通符号,转而以星际探险为贯穿始终的叙事主线,借由建筑形态、流动的空间逻辑与层次化的场景营造,为孩童搭建起通往未来世界的认知入口,让每一次驻足与探索,都成为对未知的勇敢叩问。

©Gaoxin
该项目以先锋性的设计语言,重新定义了幼儿园建筑的多维边界。外观层面,福州翌索未来幼儿园通体流露着强烈的未来主义气质,其极具辨识度的造型仿若自未来时空破空而来,彻底打破传统幼儿园建筑的刻板范式,赋予空间极具冲击力的视觉张力与层次丰富的体验维度。
建筑外立面的每一处不规则形态、每一道独特的轮廓线条,皆成为承载探索精神与创新理念的叙事载体,以无声的语言激发着孩童心底的无限想象力。
更为深刻的是,设计重构了孩子与空间的关系逻辑 —— 从被动的功能使用,升维至双向激活的动态共生。当孩子的行为轨迹、空间的功能属性与前瞻的教育思维三者深度交融,一个充满生命力的交互场域便由此成型。

©Gaoxin
值得一提的是:项目打破平面布局的局限,构建了从地面到连廊再到屋顶的三维活动系统:连廊形成风雨无阻的探险道。迪卡设计团队将建筑的每一层都转化为可探索的游戏场。
核心概念

©迪卡建筑设计中心
在设计逻辑上,本次方案摒弃 “建筑为载体、玩具为附加” 的常规思路,而是选将将 “探索宇宙” 的主题深度融入建筑形态与空间功能。
真正的儿童友好:
是尊重天性而不纵容
彰显创意而不浮夸
守护安全而不桎梏。
它既是福州城市肌理中一抹灵动的教育注脚,更是对空间即成长伙伴理念的深刻践行——让每个生命个体在探索未知的过程中锚定自我,在感受温柔的瞬间积蓄力量。
最终在这片被珍视的天地里,生长出对世界的敬畏、对生命的热爱与对未来的无限可能。

©迪卡建筑设计中心
从几何形态的反复推演,到设计细节的精细铺陈,每一处巧思都源于清晰而克制的专业研判 —— 设计不再张扬喧哗,而是化作温和却有力的场域语言,不动声色地引导着行为的轨迹、知觉的觉醒与成长的节奏。
在这里,灵感从不是突如其来的偶发闪现,而是一种被空间悄悄滋养出的自然状态。它隐匿于日常的点滴光景里,随时间慢慢积累、静静酝酿、缓缓流动,如同呼吸般轻盈自然,细微无声,却从未停歇。
施工过程
当先锋的设计构想直面现实建造的重重问题,当异型设计带来的诸多挑战,迪卡建筑设计中心携手施工团队,以精密的技术把控拆解难题,用创新的工艺解法突破壁垒,最终让这座充满未来感的幼儿园,精准呈现出设计蓝图中的震撼效果。


©迪卡建筑设计中心
从概念图纸一步步浇筑为触手可及的实景,这场从创意到落地的建造之旅,不仅是对设计初心的极致还原,更是一场建筑技术与施工的全面实力淬炼。


©迪卡建筑设计中心
异型拱券 / 曲面成型精度难题
施工阶段的拱形户外空间,但非对称拱券 + 曲面坡道的造型,对现场浇筑工艺提出极高要求。
超大体量异型空间的施工安全与拼接难度
整体式曲面异型结构,且需在干燥环境下作业,而福州多雨的气候增加了工序的时间压力。
异型造型与幼儿安全标准的平衡
拱券边缘需做圆角处理,施工中需在混凝土基层阶段就打磨弧度,设计与施工全程联动,在保证造型创意的同时,不牺牲安全使用功能。

©Gaoxin
在这里,空间成为灵感发生的容器与媒介。动线本身,则是一段为灵感而设的动态轨迹。连廊并非单纯的通行节点,而是被赋予星际栈道叙事内核,成为串联起全园探索动线的关键枢纽。
孩子们穿行其间时,可驻足眺望园区景观,与同伴追逐光影,或是在拱下角落开展小型互动游戏,让原本单一的通行功能转化为充满趣味的探索场景,使空间探索本身成为一场无需指引、自发参与的成长游戏,动线本身充分契合幼儿天性与项目探索未来 的设计理念。


©Gaoxin
教育场域的本质:让空间成为第三教师
福州翌索未来幼儿园的设计,最终指向对幼儿空间价值的重构:传统幼儿园的空间是功能容器,而此处的空间是主动的教育者。建筑不再是背景,而是参与成长的第三教师。
从命名的意涵到空间的落地,迪卡建筑设计中心始终将探索未来的抽象理念转化为可触摸、可游戏、可学习的场域。
这座漂浮在福州的未来堡垒,不仅是建筑形态的创新,更是对幼儿教育空间本质的回应:最好的未来教育,是让孩子在想象中触摸世界的无限可能。


©Gaoxin
能量场域
圆形平面布局模拟能量场域
围合、展开、流转、再聚合

©Gaoxin
户外的宇航员雕塑并非装饰
而是成为幼儿园思想聚焦的沉浸视觉核心
在福州翌索未来幼儿园顶端,这座以思考者姿态蜷坐的宇航员雕塑,绝非单纯的装饰符号 —— 成为整个场域的思想锚点。
当孩子们仰头望见,便会不自觉地被带入宇宙观察者的角色:它既是 星际探险叙事的视觉核心,也在无声中邀请孩子驻足、仰望、畅想 ——“宇航员在想什么?宇宙的另一边有什么?”
就像幼儿园里的“静默引导者”让每一次仰望,都成为一场关于如何与世界对话隐性教育。它让未来不再是抽象的词汇,而是具象为一个可凝视、可对话的精神符号,成为幼儿园里触发想象与思考的沉浸型视觉核心。

©Gaoxin
弹性场域:功能与游戏的无界融合
并未严格划分教室、活动区的边界,
而是以弹性空间回应幼儿的不确定性
福州翌索未来幼儿园打破传统空间的刻板分区,并未严格划分教室、活动区的边界,而是以流动的探索容器构建出一处功能与游戏无界融合的弹性场域。

©Gaoxin
多感官的融合体验:
构建幼儿无界探险路径


©Gaoxin
星际探险聚落户外核心区
具象化的星际基地场景
适配幼儿行为的弹性场域
该区域是整个幼儿园场域中最具标志性的户外探险综合体 —— 以宇宙聚落舱群为设计原型,通过错落的曲面体块、立体动线与主题装置,将单一的户外游戏空间转化为可多维探索的星际基地。

©Gaoxin
设计师希望塑造一个以感官引导思维的环境,弧形拱顶以柔化的曲面消解了硬质空间的边界,纯白肌理搭配异性小窗,还原了宇宙飞船舱内通道的沉浸感,让孩子步入此处时,自然代入角色语境。—— 空间连通了不同标高的活动区域,既保障了活动安全,又以轻盈的视觉质感延续了 未来舱体的设计调性。保障孩子在上下穿梭时,通行动线成为探索流程的一部分。


©Gaoxin
室内功能与体验
适配幼儿的细节设计
幼儿园内部空间用柔化的曲面肌理、圆形符号与嵌入式系统,构建出既契合幼儿行为习惯,又充满沉浸感的学习场域。
空间整体以低饱和度的浅色调为主,搭配温润的水磨石、木质地面等材质,避免视觉刺激的同时,保障了幼儿接触的安全性;所有曲面边角均做圆角处理,嵌入式设施无突出锐角,让安全防护 融入空间形态,而非额外添加防护件破坏整体氛围。


©Gaoxin
室内空间氛围
柔和的漫射光搭配曲面天花的光影过渡,既满足室内照明需求,又弱化了人工光的生硬感,契合幼儿对柔和环境的心理需求。


意大利顶级家具品牌B&B ItaliaUP系列 妈妈的怀抱沙发©Gaoxin
选择意大利顶级家具品牌B&B Italia旗下的经典作品 ——UP 系列(常被称为 “妈妈的怀抱”)当作幼儿园的陈设,本质是通过家具传递情感教育。此款设计由先锋设计师 Gaetano Pesce于1969 年在米兰家具展首次推出,其无框架、全包 的形态,让充满探索感的空间里,多了一份被拥抱的温暖。

©Gaoxin
良好的视觉情绪
通过多感官的精细介入,幼儿园空间不再是被动承载功能的容器,而是一个具有感知和反馈能力的生命体,福州翌索未来幼儿园的设计,早已超越了建筑与空间的表层意义,它是一处有温度、有灵魂的成长场域。
在这里,各种场景都为孩子搭建了探索世界的框架,弹性场域的设计为孩子提供了自由成长的空间,细节巧思的考量为孩子筑牢了安全温暖的港湾,隐性教育的融入为孩子赋能全面成长。

©Gaoxin
安全与温柔并存
让成长更有温度
对于幼儿园空间而言,安全是底线,温柔是底色。福州翌索未来幼儿园的设计,将安全防护与情感关怀融入每一个细节,让空间既足够安全,又充满温度,为孩子构建起一个“被拥抱”的成长环境。


©MOMENT VISION
福州翌索未来幼儿园的设计,始终围绕隐性教育的核心——让空间成为无声的教师,将教育目标融入每一处空间体验,让孩子在探索中自主学习、在互动中收获成长。


©MOMENT VISION
在认知教育方面,空间设计通过主题元素的渗透,激发孩子的好奇心与求知欲:
空间中的各种元素都在无声地引导孩子关注宇宙、探索未知。
性能与责任共担

©Gaoxin
在社交能力培养方面,弹性场域的设计为孩子提供了充足的互动空间。开放的共享区域、可拼接的游戏桌、集体活动场,都在引导孩子自发社交、分工合作。这些互动场景,让孩子在潜移默化中学会沟通、懂得合作,提升社交能力与团队意识。
空间的灵活性与多样性,为孩子提供了自主选择的机会。孩子可以根据自己的兴趣,选择在阅读区安静看书,在游戏区尽情奔跑,在创作区发挥想象。这种自主选择的过程,能够培养孩子的独立意识与自我认知,让每个孩子都能在适合自己的节奏中成长。



©MOMENT VISION
品牌精神的流动

©Gaoxin
福州翌索未来幼儿园的落成,从来不止是一座建筑的物理呈现,更是一场关于儿童成长本质的深度叩问与空间应答。它以“星际探险”为精神锚点,打破功能与形式的固有桎梏,用流动的场域、温柔的细节与隐性的教育逻辑,构建起一个既承载孩童纯粹想象,又暗合成长规律的精神容器。
当星际堡垒的具象形态褪去表层的创意符号,留下的是对儿童成长需求的极致洞察与人文关怀。它终将超越时间的流转,成为承载一代孩童成长记忆的精神地标,也为当代幼儿空间设计提供一份兼具温度与深度的实践范本——真正有灵魂的空间,从来都能在守护童真的同时,为生命的成长点亮一束永恒的光。
B1平面图©迪卡建筑设计中心

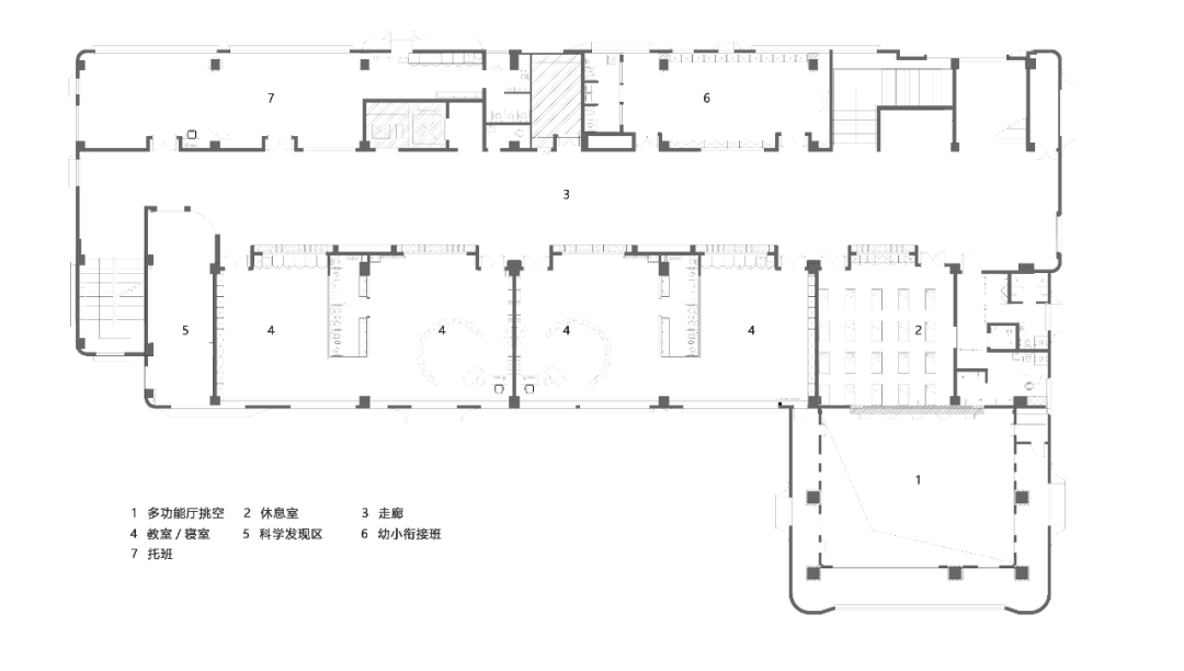
F1平面图©迪卡建筑设计中心

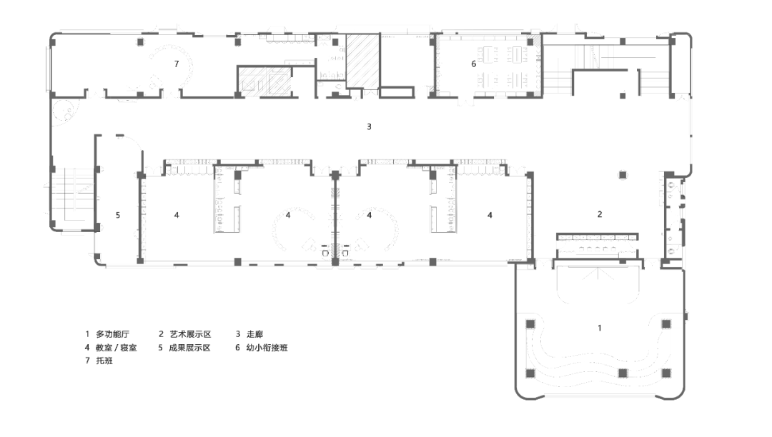
F2平面图©迪卡建筑设计中心

F3平面图©迪卡建筑设计中心
项目信息
项目名称:福州翌索未来幼儿园
项目地址:福建福州
项目业主:福建晟禾教育管理集团有限公司
设计时间:2020~2023年
完工时间:2024年
建筑面积:9646m²
建筑设计:迪卡建筑设计中心
主创建筑师:王俊宝
主创设计师:谭慧敏、田佳宾、欧吉勇、傅会明、陈健、
参与设计师:杨茗、卢庆银、旷文胜、高鑫 、王炳锡、万丽莎、马陆、姬晓瑞、唐胜焰、王牡丹、杨新荣、崔英楠、霍良月、刘晓宇
品牌设计:见山文化、侯庚
施工图深化:王鹏、李境、陈冠宇、陶合欣、史文澜、高娟、
结构设计:福建旭炑里建设工程有限公司
拍摄团队:福州MOMENT VISION摄影工作室、高鑫
山庄提示: 道行不够,道券不够?---☆点此充值☆
 
在线jjybzxw

UID: 551814


发帖
212193
金币
613450
道行
2006
原创
2441
奖券
3260
斑龄
41
道券
1197
获奖
0
座驾
设备
摄影级
在线时间: 46437(小时)
注册时间: 2008-10-01
最后登录: 2025-12-19
只看该作者 沙发  发表于: 3小时前
迪卡建筑设计中心(DEKA Architects)由知名建筑师王戈创立,其设计作品以打破常规、强调儿童视角与自然互动著称。福州的“安澜楼幼儿园”是其代表作之一,该建筑不仅在形式上极具视觉冲击力,更在教育理念与空间营造之间建立了深刻联系。以下从多个维度解析该幼儿园建筑的设计特点:
一、颠覆传统形态:如山似船的有机造型
安澜楼幼儿园最显著的特点是其极具想象力的建筑外形——整体形似一艘破浪前行的巨轮,又仿佛层叠起伏的山峦,与福州滨江临海的地理环境相呼应。这一设计打破了传统幼儿园方盒子式的刻板形象,以流线型屋顶和错落的体块营造出富有动感的空间轮廓。
建筑顶部采用连续坡道与平台连接,形成可攀爬、可奔跑的“儿童友好型地形”,激发孩子探索欲望。
“船”的意象象征着启航与成长,隐喻幼儿教育是人生旅程的起点,赋予空间深层文化寓意。
二、以儿童尺度为核心的空间叙事
迪卡设计始终坚持“从孩子的视线出发”,在安澜楼项目中体现得淋漓尽致:
所有门窗、扶手、台阶均按3—6岁儿童的人体工学精心设定,让儿童真正成为空间的主人。
走廊宽度、转角弧度、采光角度均经过模拟测试,确保安全与舒适并重。
设计中设置大量“微角落”:如嵌入墙体的小阅读龛、树屋式瞭望台、地台下的秘密通道,满足儿童对私密性与冒险感的心理需求。

这种“小人国”式的设计哲学,不仅是物理尺度的调整,更是一种对儿童主体性的尊重与赋权。
三、自然渗透:建筑与生态的共生系统
幼儿园坐落于福州山水之间,设计充分回应地域气候与生态环境:
屋顶绿化与垂直庭院交错布置,形成“空中花园”系统,实现降温隔热、雨水收集与生物多样性保护。
中庭引入自然通风与导光井,减少人工照明与空调依赖,打造健康低碳的学习环境。
户外活动区融合沙地、水渠、植被迷宫等自然元素,鼓励儿童在真实自然中感知季节、光影与生命变化。

这种“去人工化”的景观策略,契合现代幼儿教育中“自然教育”(Nature-based Learning)的核心理念。
四、色彩与材质:激发感知与情感共鸣
迪卡在该项目中大胆运用高饱和度色彩,但并非随意涂抹,而是基于心理学研究进行系统布局:
不同班级区域采用不同主色调(如橙黄代表活力、蓝绿象征宁静),帮助儿童建立空间记忆与情绪调节。
外墙使用耐候性强的环保涂料,内装多采用木材、软质橡胶与无醛板材,兼顾美观与安全性。
地面图案融入数字、字母与几何图形,使行走过程也成为潜移默化的学习体验。

色彩不仅是装饰,更是认知工具与情感媒介。
五、社会价值重构:公共性与城市对话
安澜楼幼儿园虽为教育建筑,却具备强烈的城市属性:
底层局部架空,形成开放的半公共空间,供家长等候、社区交流甚至举办小型市集,模糊学校与城市的边界。
建筑立面采用通透设计,在保障隐私的前提下增强视觉连通性,消除传统校园的封闭感。
项目成为区域地标,带动周边环境品质提升,体现了教育建筑作为“社会催化剂”的潜力。

这标志着幼儿园从“功能容器”向“社区枢纽”的角色转变。
结语:一场关于童年尊严的空间革命
迪卡建筑设计中心在福州幼儿园项目中,完成的不仅是一次建筑创新,更是一场对现代学前教育空间范式的反思与重构。它用诗意的形式语言、严谨的功能逻辑与深切的人文关怀,重新定义了“什么是适合儿童生长的空间”。在这个高度标准化的时代,安澜楼如同一座漂浮的童话岛屿,提醒我们:真正的教育,始于对每一个微小生命的敬畏与理解。
如何不发帖就快速得到金币道行
 
快速回复
限120 字节
认真回复加分,灌水扣分~
 
上一个 下一个